Marquez de Loreto 2300, Castelar, Morón, Buenos Aires, Argentina



Lote con proyecto aprobado: Emprendimiento para 2 dúplex de 4 ambientes con cocheras en la zona más exclusiva de Castelar
Castelar, Morón, Buenos Aires, Argentina
Operación: Venta
Dirección: Marquez de Loreto 2300
Ubicación: Castelar, Morón, Buenos Aires, Argentina
Código: 684-CV00109
Precio: US$ 180.000
Descripción
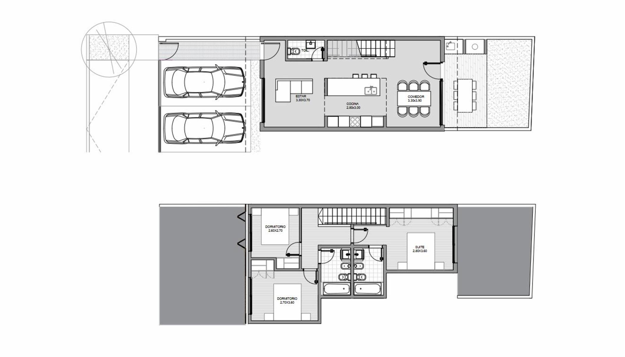
A metros del área central de Castelar, un conjunto de viviendas de 4 ambientes de categoría ubicado en zona residencial con cercanía a los principales comercios de la zona. Su locación se distingue por su accesibilidad y conectividad con los distintos medios de transportes. El conjunto de viviendas se destaca por su moderno diseño, espaciosidad, funcionalidad y luminosidad. UNIDAD A: sup. total: 137,50m², sup. cubierta: 107m², 2 cocheras. PB - Espacios sucesivos integrados divididos por sus usos, hacen de esta planta libre un ambiente cálido y funcional donde compartir. Ventilación cruzada, iluminación en ambos frentes, jardín trasero con parrilla hacen al confort de la unidad. PA.- Partiendo de un espacioso distribuidor damos con una suite sobre un frente y dos dormitorios con baño compartido al otro. Detalles de categoría. Anticipo del 40 porciento y financiación.
Destacados del inmueble
Tipo de inmueble: PH
Ubicación en el mapa
Planos de la propiedad

