Magariños Cervantes 1400, Villa Crespo, Capital Federal, Argentina



Departamento en Venta en Villa Crespo, Capital Federal
Villa Crespo, Capital Federal, Argentina
Operación: Venta
Dirección: Magariños Cervantes 1400
Ubicación: Villa Crespo, Capital Federal, Argentina
Código: 479-1015
Precio: $ 534.000
Expensas: ARS 450
Descripción
* * * * A REAL INVERSOR * * * * Proyecto de Inversiòn * dptos de UNO y DOS AMBIENTES, desde $ 534.300.- Ud puede ingresar al proyecto con un 15 y cuotas ACCESIBLES. DETALLES DE LA PROPIEDAD: Las unidades tienen una superficie de aprox. 39m2 con balcón, con amplia VISTA A LA CIUDAD living-comedor (aprox 26m2), cocina del tipo americano con termo tanque de 80lst., baño completo con lugar para lavarropas, La grifería es de primera marca. El edificio es APTO PROFESIONAL y apto mascotas. (Las medidas son aproximadas, las definitivas surgen del Plano de Subdivisión). El edificio posee cocheras opcionales (aùn disponibles)* EXCELENTES DEPARTAMENTO DE UNO Y DOS AMBIENTES * con planos aprobados y unidades MUY LUMINOSAS. Escuchamos su propuesta. FECHA DE ENTREGA PREVISTA: DICIEMBRE DEL 2015 (24 meses). UBICACIÒN: El edificio estará ubicado sobre la calle Magariños Cervantes al 1400 (y Nicasio Oroño), altura Juan B. Justo al 4000, a metros de Av. San Martín y Donato Alvares, límita con el barrio de Caballito. CARACTERÌSTICAS DEL EDIFICIO: El Proyecto es un edificio Estándar, totalmente eléctrico, con detalles de categoría, muy moderno y práctico. Posee un ascensor, servicios de agua y luz, portero eléctrico y calefacción con lugar para aire acondicionado. MEDIOS DE TRANSPORTE: Variadas Líneas de Colectivos y Pre Metro sobre Av. J. B. Justo. CARACTERÌSTICAS DEL BARRIO: Es un barrio que se caracteriza por sus calles anchas y tranquilas, algunas asfaltadas, otras con adoquines. Es una zona arbolada y se destaca por ser un barrio de casas bajas, y otras más importantes en su parte residencial. También lucen torres altas y comercios que le dan mucha vida y dinámica al lugar. Pertenece a la Comuna 11, a la Región Sanitaria III (Oeste) y al Área Hospitalaria del Hospital Dr. T. Alvares. Magariños Cervantes Al 1400 Esquina Y Nicolàs Oroño, Villa Gral. Mitre.
Destacados del inmueble
Tipo de inmueble: Departamento
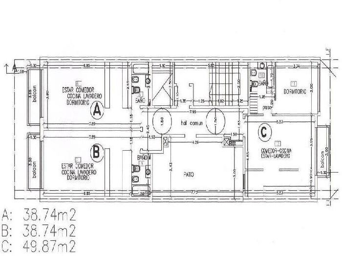
Superficie total: 39 m2
Plantas: 12
Baño/s completo/s: 1
Departamentos por piso: 3
Detalles del inmueble
Ubicación en el mapa
Planos de la propiedad

