Avenida Rivadavia, Liniers, Capital Federal, Argentina


Departamentos en construccion
US$ 43.000
Liniers, Capital Federal, Argentina
Share
Operation: Venta
Address: Avenida Rivadavia
Location: Liniers, Capital Federal, Argentina
Code: 2997-2578
Price: US$ 43.000
Description
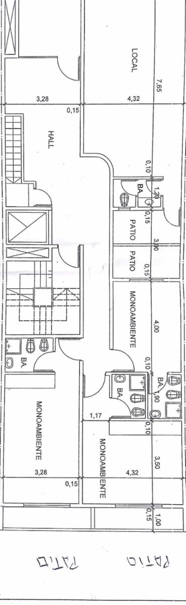
Departamento de 1 ambiente en construcción. En planta baja con patio. 21m2. U$S 43.000 Departamento de 1 ambiente en construcción en planta baja con patio. 36m2. U$S 51.000 Departamento de 1 ambiente en construcción en planta baja con patio. 41m2. U$S 57.000 Entrega Agosto 2018 Formas de pago No dude en consultar
Property Highlights
Property type: Departamento
