California 2152, Barracas, Capital Federal, Argentina



Alquiler Local Comercial. Zona Barracas.
Barracas, Capital Federal, Argentina
Operation: Alquiler
Address: California 2152
Location: Barracas, Capital Federal, Argentina
Code: 966-80379
Price: $ 900.000
Description
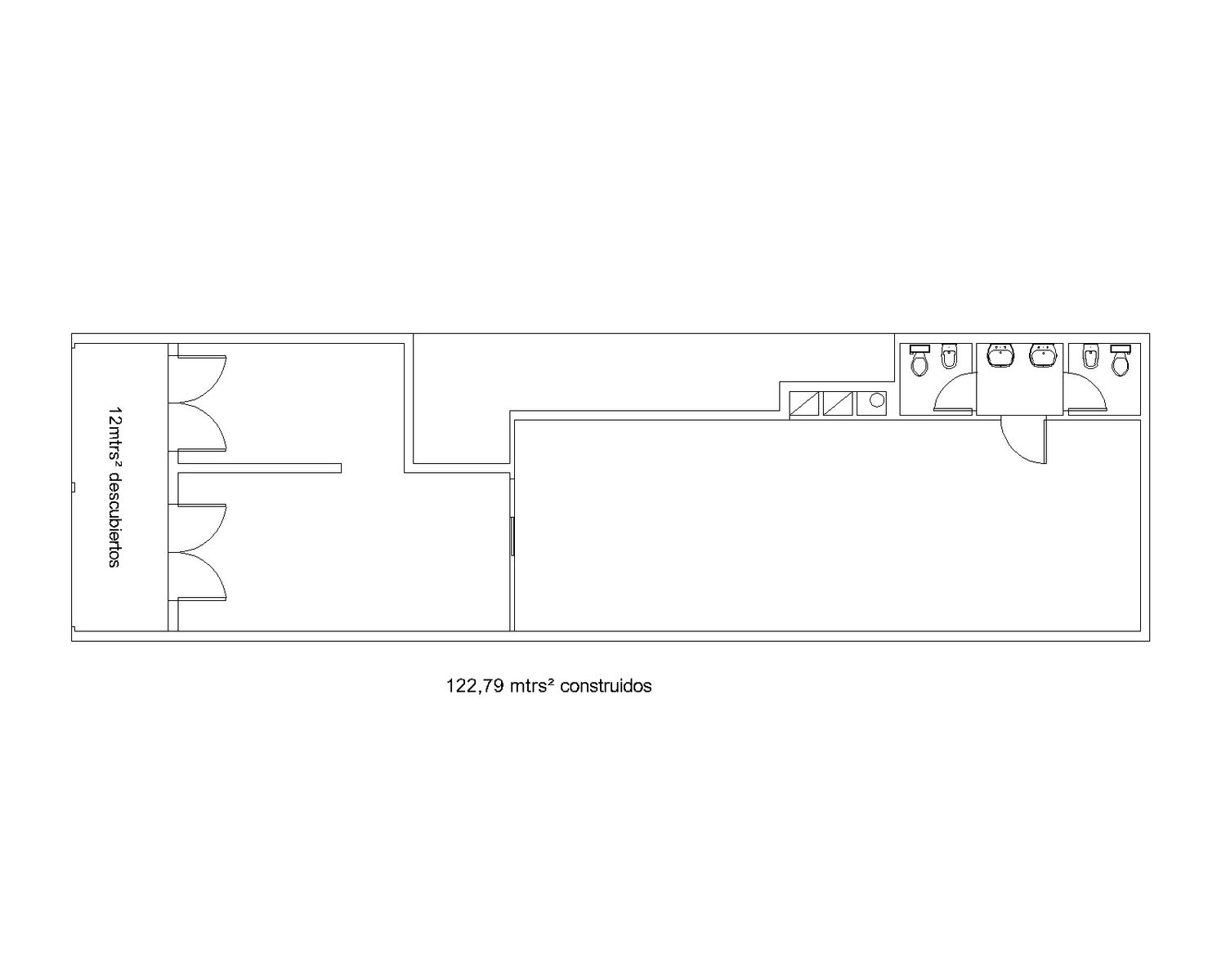
Alquiler local comercial. Zona outlets de Barracas. Excelente ubicacion comercial, cercano a las principales avenidas y accesos. Posee en la entrada 2 puertas dobles blindex, ideal para local comercial y deposito. Cuenta con un gran ante-baño abierto y 2 baños completos. Local NO APTO PARA RUBRO GASTRONOMICO. El inmueble es accesible para personas con discapacidad. Cuenta con cortina de enrrollar electrica. Gastos: $ 400.000. En dicho gasto, esta incluido Aysa y no se cobra ABL OBSERVACIONES: TANTO LA ANTIGUEDAD COMO LOS M2 SON A MODO ORIENTATIVO.
Property Highlights
Property type: Local Comercial
Total surface: 135 m2
Full bathroom/s: 2
